
Душевые уголки UNO — сочетание функциональности, эстетики и надёжности. UNO — это разнообразие форм и размеров, простота установки и лёгкость ухода. Конструкция из закалённого стекла выдерживает интенсивное использование, а качественная фурнитура обеспечивает плавное открытие и герметичность.
Ширина изделия, см | 120 |
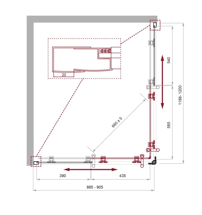
Глубина изделия, см | 90 |
Высота изделия, см | 195 |
Бренд | BelBagno |
Коллекция | UNO-195 |
Стиль | Современный |
Форма | Прямоугольная |
Материал профиля | Анодированный алюминий |
Цвет | Хром |
Поверхность профиля | Глянцевая |
Материал стекла | Закаленное стекло |
Поверхность стекла | Рифленая |
Толщина стекла изделия, мм | 5 |
Ширина входа, см | 66 |
Регулируемая ширина | Да |
Конструкция дверей | Раздвижная |
Ориентация дверей | Универсальная |
Антикальциевая обработка | Нет |
Поддон | Нет, приобретается отдельно |
Оснащение | Двойные подшипниковые ролики |
Монтаж | Напольный, на поддон, пристенный в угол |
Гарантийный срок | 3 года |
Гарантийный срок на резинотехнические изделия | 1 год |
Помогите другим пользователям с выбором - будьте первым, кто поделится своим мнением об этом товаре.